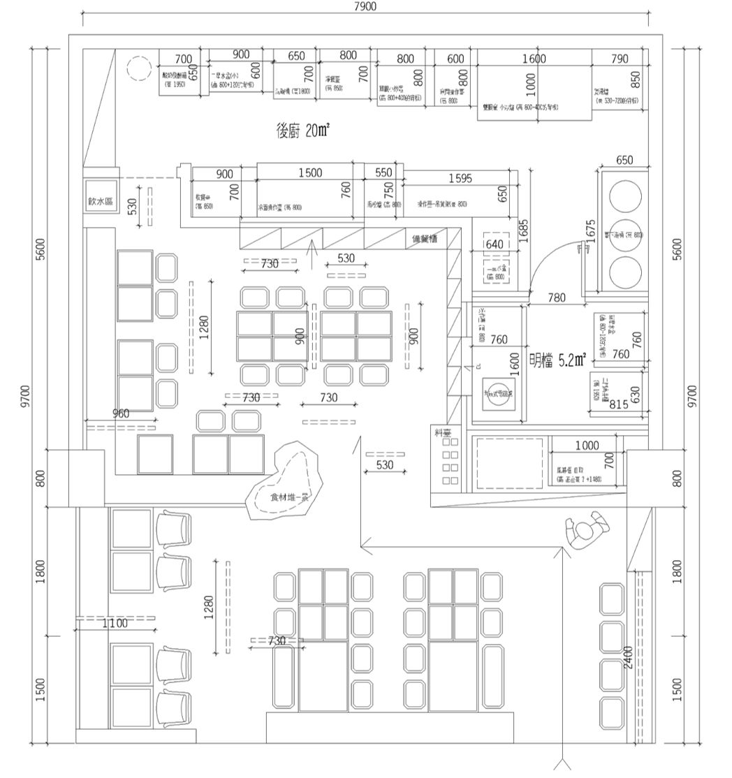
项目坐落于北京朝阳区新世纪大厦-内部餐饮区,整层为各类特色餐饮小品聚集之地。商场内部采用一店一特色的装修原则,让你在逛吃的同时也可以体验到各色风格装修特色。我们的甲方是一个资深招商策划之大神,每日的阅读量堪比圣卷。整个设计的过程中,我们进行了充分的沟通。看似新疆人习以为常的餐品米粉,在首都北京还是一个未开发的扩土。充分的考虑消费心理学,
我们采用市场更容易接受的亲切调性 - 拉进新产品的陌生感。整体设计简单明了,明确传达现炒的更好吃的理论!门头中心区最显眼的区域采用堆头的形式展现产品内容的解剖感,让消费者吃的明明白白O(∩_∩)O。整体内部布局简单迂回,就座形式相对便捷配搭。尺寸上做了微调整,达到既有紧凑区又满足宽敞感的需求。内部中间假石草丕的区域,中心站立竹编鸡与鸡蛋的形式-点题我们空间的另外一个销售单品:椒麻鸡……
The project is located in the new century building, Chaoyang District, Beijing - internal catering area. The whole floor is a gathering place for all kinds of special catering products. The interior of the shopping mall adopts the principle of "one store, one feature", so that you can experience the decoration features of various styles while shopping and eating. Our Party A is a senior investment planning God, the daily reading can be compared to the holy volume. During the whole design process, we had full communication. It seems that the rice noodles that Xinjiang people take for granted are still undeveloped in Beijing. Fully consider consumer psychology,
We adopt the more acceptable cordiality of the market - the strangeness of pulling in new products. The overall design is simple and clear, and clearly conveys the theory that fried food is more delicious! The most prominent area in the central area of the front door adopts the form of pile to show the anatomical sense of the product content, so that consumers can eat clearly_ ∩)O。 The overall internal layout is simple and circuitous, and the seating form is relatively convenient. The size is slightly adjusted to meet the needs of both compact area and spacious feeling. In the middle of the interior, there is a fake stone grass area, and the center stands in the form of bamboo chicken and eggs



| 340m² | 新疆·塔城
| 418㎡ | 新疆乌鲁木···
| 565㎡ | 乌鲁木齐市···
Copyright © 2006-2020 圣丹迪设计 版权所有 | 网站地图 |
新ICP备14012365号
新公网安备65010402000977
友情链接:
新疆展厅设计
乌鲁木齐网站建设
TOP-CELLU