欢乐纳瓦对于新疆菜来说,她代表着新疆菜作为第九大菜系的先行者。同时也是行业内对出品及环境打造极为严苛的团队之一。这是他们第一次进入深圳华侨城旗下商业体,旨在打造深圳最具新疆特色的情境融入式就餐体验环境,打造新疆餐饮文化全新的名片,及品牌重新定义的模板。
For Xinjiang cuisine, happy Nava represents Xinjiang cuisine as the pioneer of the ninth largest cuisine. At the same time, it is also one of the most strict teams in the industry. This is the first time that they have entered the business entity of overseas Chinese town in Shenzhen, aiming at creating the most situational catering experience environment with Xinjiang characteristics in Shenzhen, creating a brand-new business card of Xinjiang catering culture and a template for brand redefinition.









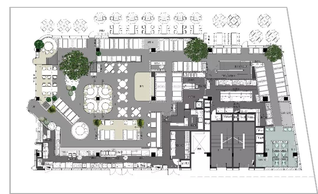
在设计未动一笔前,5个地区,6个城市,11个顶级商业综合体,每天10-15家店的甄选考察,3000字从设计角度对品牌商业定位分析,5次从白天到黑夜的双方头脑风暴会议,这只是项目刚刚开始而已。
Before the design, there are 11 top commercial complexes in 5 regions, 6 cities, 10-15 per day In the selection and inspection of the stores, 3000 words were used to analyze the brand's commercial positioning from the perspective of design, and 5 times from day to night It's just the beginning of the project.








古朴元素与现代手法的相立相依,生土材质的基底搭配外景内置的设计手法,让触感与视觉更符合体验式就餐环境。形态感与纱幔软饰的平衡,让新疆独有的高台民居建筑形态与柔美的艾迪莱斯布艺刚柔并济。沉淀的历史感与色彩的热烈冲击,时尚大胆的暗场撞色与古旧的木质,陶制品,既体现出空间氛围的神秘,又表现出地域特色的热烈情感。粗放的制式与考究的用具形成的体验感都是整体设计我们要置入的主题手法和表达语言,在释放出新疆西域文明与文化独有势能的同时,呈现出一个满足深圳食客从产品到文化,从环境到感受的全新立体品牌形象。
The primitive elements and modern techniques are mutually dependent, and the base of raw soil material is matched with the built-in design hand of the locationMethod, let the touch and vision more in line with the experiential dining environment. The balance between the sense of form and the soft decoration of gauze curtain makes the appearance more beautifulThe unique architectural form of Gaotai folk houses in Xinjiang combines with the soft cloth art of adiles. The historical sense of precipitation and the warm impact of color, the bold dark color contrast of fashion and the old wood and pottery show not only the mystery of space atmosphere, but also the warm emotion of regional characteristics. The sense of experience formed by extensive standard and exquisite utensils is the theme and expression language that we should put into the overall design. While releasing the unique potential energy of Xinjiang western region civilization and culture, it presents a brand new three-dimensional brand image that meets the needs of Shenzhen diners from product to culture, from environment to experience.
| 340m² | 新疆·塔城
| 418㎡ | 新疆乌鲁木···
| 565㎡ | 乌鲁木齐市···
Copyright © 2006-2020 圣丹迪设计 版权所有 | 网站地图 |
新ICP备14012365号
新公网安备65010402000977
友情链接:
新疆展厅设计
乌鲁木齐网站建设
TOP-CELLU