老城新造甜品店,融入升格 / 公司新闻

大家好,

这里是圣丹迪

我们在乌鲁木齐八钢

今天看我们是如何实现用一家现代甜品店,

给老城带来一抹新的活力。


图片


我们是怎么考虑的?


提炼:

市场环境+设计思维+顾客角度                          

升格新的品牌价值,对周边相同业态形成”降维打击“。


项目开始的初期一方面考虑到我们的委托方:布朗先生。是一家高端甜品品牌,我们又对其近年的发展历程做了深入了解。总结出:布朗先生围绕品牌核心理念,”融入生活“,对线下门店采用一店一特色视觉展示,影响不同的消费人群,打造线下门店。

另一方面我在对现场以及周边市场调研观察过后,发现整体八钢消费市场氛围偏向保守,但有意愿尝试新的事物。加上项目处于下沉式市场,我们则需要兼顾周围顾客消费能力和人群年龄。

所以我们决定不用过于跳脱的设计,让整个门店与顾客产生距离感。在融入老城商业市场氛围的环境前提下,以此为基底,对品牌门店提升基于周边环境10%的视觉效果。

使其很温柔舒适的出现在顾客的视野中,很容易形成记忆点。

通过布朗先生品牌所承载的文化背景我们符合项目环境的设计思维,呈现出一家同时具备从空间表达,产品品质,品牌赋能,融入消费者内心的线下门店。

我们相信取得委托方肯定的同时,也为老城带来了新的变化。



                                                

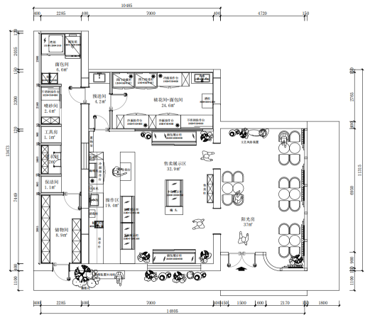
具体到方案

先祭出我们的重中之重——平面图


图片

空间实景
图片
                        内部视角(1) 
图片
                        内部视角(2) 

整体平面布局我们对空间进行了重新规划,以阳光房做为整体空间的点睛之笔。在确立平面图的过程成中,我们对整个空间进行了精确测量,在满足所有日常营业工作的需求下,力求做到”麻雀虽小,五脏俱全"。




接下来就是最简单的一步了

图片

电脑会用吧?

手肯定有吧?

先把这些元素提取出来
图片
橙、白色彩提取 55%
图片

LOGO色彩提取 15%

继续继续
图片
材质色彩提取 15%
图片软装色彩提取 15%


试着把这些元素与平面图组合起来

就得到了


图片

 (门店外立面)


图片

 (原始外立面)

我们准备把门店如图位置,改造为阳光房,作为门店正面,面对主街。同时增加一面产品展示窗。形成一面动态的活字招牌。


继续走进阳光房内部

图片

(阳光房)

阳光房这个部分的设计,有一个细节可能经常被大家忽视。项目落地于新疆乌鲁木齐八钢。北方化雪的时候,容易在排水槽形成积冰,在排水口处形成冰柱。带来安全隐患。那我们的解决办法就是,在排水槽里埋进电发热条(类似车玻璃上的),使排水槽内水始终是流动的。


最后进店看看

图片


(门店内部)

整体空间表现以现代简约,舒适的风格为主题。将布朗先生品牌进行提炼与重建,为本品牌树立全新空间形象,以舒适的、极具特色的消费体验环境作为市场引流,结合自带优势特色的产品,成为八钢甜品市场打卡消费必到场所。

TAG:

Copyright © 2006-2020 圣丹迪设计 版权所有 | 网站地图 | 新ICP备14012365号 新公网安备65010402000977
友情链接: 新疆展厅设计 乌鲁木齐网站建设 TOP-CELLU